Eksempler på indhold af tegningsmaterialer
Få inspiration til hvad tegningen til en byggeansøgning kan indeholde af oplysninger.
Hvis du skal søge om byggetilladelse, nedrivningstilladelse, dispensation, nedsivningstilladelse, etablering af jordvarme mm. skal du bruge Byg & Miljø.
En ansøgning omkring nyt byggeri kan være meget kompliceret. Derfor kan du løbende gemme din ansøgning i Byg & Miljø, indtil du har besvaret de spørgsmål, som er nødvendige for din ansøgning.
For at kunne indsende din ansøgning skal du bruge dit MitID.
Formålet med Byg & Miljø er at kommunerne får et mere digitalt ensartet og fyldestgørende ansøgningsgrundlag, og at det samtidig skal give borgeren/virksomheden en mere ensartet måde at ansøge på.
Nej, det er ikke nødvendigt at dine tegninger er arkitekttegninger. Kommunen kan sagtens behandle din byggeansøgning ud fra tegninger du selv har lavet.
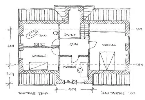
Se tegningseksempler for at få inspiration til, hvad tegningerne kan indeholde af oplysninger.
![]()
Plantegning 1:
![]()
Plantegning 2:
![]()
![]()
Din bebyggelsesprocent svarer til den del af din grund som er bebygget.
Eksempel: Grundareal 900 m² – hus 90 m² i stueplan, 65 m² tagetage, garage 45 m²
90 m² + 65 m² + (45 m² -35 m² fradrag for småbygninger) = 165 m² bebyggelse
165 m² begyggelse / 900 m² grundareal x 100 = 18,33 %
Bredden af en tagetage (1. sal med skråvægge) beregnes fra det punkt hvor overkanten af gulvet til overkanten af udvendig tagflade rammer 1,5 meter ganget med længden af huset fra udvendig side af gavlen – Se Tværsnit
Du må bygge op til 50 m2 fritliggende bygninger uden at søge om det (sekundære bygninger). Det samlede areal af alle fritliggende sekundære bygninger som garager, carporte, udhuse og overdækkede arealer må altså maksimalt være 50 m2, og SKAL opfylde byggeretten i bygningsreglementet og evt. lokalplan mv. gældende for din ejendom.
At overholde en byggeret efter bygningsreglementet vil sige, at du skal overholde:
Hvis du altså vil opføre et skur, hvor det samlede areal af alle sekundære bygninger overstiger 50 m2 eller hvis skuret ikke overholder byggeretten, skal du søge en byggetilladelse.
Overholder skuret byggeretten, men ikke bestemmelserne i en lokalplan, skal du blot søge en dispensation fra lokalplanen.
Lavenergibebyggelse er en betegnelse der bruges i en lokalplan når et område er planlagt til kun at kunne opføre energirigtige boliger i.
I næsten alle nye lokalplaner i Kolding Kommune står angivet, at et byggeri skal opføres som lavenergibebyggelse. Det vil sige at byggeriet skal opfylde kravene for lavenergi i det bygningsreglementet som er gældende på ansøgningstidspunktet for byggeriet, og ikke for tidspunktet hvor lokalplanen er vedtaget.
Hvis du ansøger om byggetilladelse til et byggeri i et område med lokalplan med lavenergikrav, skal du medsende en energirammeberegning ved ansøgning om byggetilladelse, hvor du kan dokumentere at kravet om lavenergi er overholdt.
Kommunens sagsbehandlingstider bliver kaldt servicemål. Vi forsøger hele tiden af at forbedre vores sagsbehandlingstider, men i travle perioder såsom henover sommeren, kan der opstå længere sagsbehandlingstider. Du får en forventet sagsbehandlingstid i en kvitteringsskrivelse du modtager, når du har ansøgt om byggetilladelse.
Prisen for en byggetilladelse beregnes efter den tid sagsbehandleren har brugt på sagsbehandling af projektet. Prisen afhænger derfor af, hvor komplekst projektet er, og om materialet er fyldestgørende til en sagsbehandling.
Din BBR-meddelelse er et dataark fra Bygnings- og Bolig Registret hvor alle bygninger på din ejendom står registreret. Denne registrering skal stemme overens med de bygninger som rent faktisk er opført på grunden.
Find din BBR-meddelelse på www.ois.dk – udfyld kommune og adresse og tryk søg. Under vinduet BBR-Grund ser du registrerede bygninger på grunden.
Under Borger/Planer & Projekter/Lokalplaner kan du via kort se om der er en lokalplan eller byplanvedtægt for din ejendom. Søg i adressefeltet i øverste venstre hjørne. Klik på linket og undersøg eventuelle forhold du skal være opmærksom på.
På www.ois.dk kan du også finde evt. lokalplaner og byplanvedtægter ved at udfylde kommune og adresse og tryk søg. Under vinduet Planer oplyses du om gældende planer.
På tingbogen www.tinglysning.dk kan du altid finde ud af om der er servitutter/deklarationer tinglyst på din ejendom, ved at logge ind med dit Nem-ID og søge på en adresse.
Under punktet 'Servitutter' kan du se en lille tekst til dokumentets indhold og klikke på aktnummeret for at åbne dokumentet.
En dispensation er en form for tilladelse du skal søge om, såfremt dit projekt ikke kan overholde fastsatte bestemmelser i en lokalplan eller byplanvedtægt. Når du søger om dispensation fra en bestemmelse i en lokalplan, skal denne søges enten sammen med byggetilladelsen eller bare som en ansøgning for sig selv, såfremt projektet ikke kræver byggetilladelse. Ansøgningen søges gennem www.bygogmiljø.dk.
En dispensationsansøgning skal være velbegrundet og det skal tydeligt fremgå af både ansøgning og evt. tegninger hvad dispensationen vedrører. I en dispensationsansøgning er det jer som ansøger der skal komme med de gode argumenter.
En helhedsvurdering er i princippet det samme som en dispensation. En dispensation er noget du skal søge ved afvigelser fra en lokalplan eller en byplanvedtægt, hvor en helhedsvurdering er en vurdering kommunen skal foretage ved afvigelser fra bygningsreglementets bestemmelser i forhold til byggeretten. En helhedsvurdering foretager kommunen hvis dit byggeri ikke overholder forhold som bebyggelsesprocent, højde- og afstandsforhold samt etage- og højdeforhold.
I en helhedsvurdering foretager kommunen en samlet vurdering af forhold som hensigtsmæssighed, samlet omfang, lysforhold, indbliksgener, friarealer, adgangsforhold, karakteren i området mm.
Inden du nedriver et enfamiliehus, en ejendom, dele af en bygning, en udestue eller generelt en bygning som har krævet byggetilladelse ved opførelsen, skal du altid søge om nedrivningstilladelse. Bebyggelse der kan opføres uden byggetilladelse, kan også nedrives uden tilladelse. En nedrivningstilladelse skal søges gennem www.bygogmiljø.dk
Ja, næsten altid.
Og det er altid dit ansvar som bygherre at anmelde affaldet. Så selvom du som privatperson har en håndværker eller entreprenør til at udføre arbejdet, er det stadig dig, som har ansvar for anmeldelsen.
Læs mere om hvordan du sorterer og anmelder dit byggeaffald.
Hvis der er opført en bygning på din grund, som ikke står registreret i BBR, så skal du først undersøge om der allerede er givet tilladelse til bygningen, eller om den kan registreres uden at den kræver byggetilladelse.
Er der givet tilladelse til bygningen, kan tilladelsen som regel findes i kommunens digitale byggesagsarkiv.
Hvis ikke der er givet tilladelse til bygningen kræver det en lovliggørelse, altså skal du søge en tilladelse til at få lov til at beholde bygningen. Der findes tre måder at lovliggøre et byggeri på – en retlig, enf ysisk eller en kombination af disse to.
Retlig lovliggørelse betyder, at det ulovlige forhold gøres lovligt gennem efterfølgende tilladelse eller dispensation til opretholdelse af tilstanden. Herefter vil tilstanden ikke længere være ulovlig.
Ved fysisk lovliggørelse bringes den ulovlige tilstand derimod til ophør ved, at byggeriet rent fysisk bringes i overensstemmelse med lovgivningen. Dette kan ske enten ved ombygning/reetablering af tidligere tilladte forhold, nedrivning eller en kombination af disse.
En ansøgning om lovliggørelse skal være velbegrundet og det skal tydeligt fremgå af både ansøgning og evt. tegninger hvad lovliggørelsen vedrører. Ansøgningen søges gennem www.bygogmiljoe.dk, som om det var en ansøgning om almindelig byggetilladelse. HUSK at gøre tydeligt opmærksom på at det er en LOVLIGGØRELSE i tekstbeskrivelsen.
Indretning af liberalt erhverv i en bolig kræver ikke byggetilladelse. Det skal blot registreres i BBR hvor mange værelser i boligenheden der ændres til erhverv. Hvis erhvervsdelen overstiger halvdelen af boligens areal, eller hvis der indrettes erhverv i en anden bygning end beboelsesbygningen, kræver det en byggetilladelse da bygningen ændrer anvendelse til erhvervsbygning.
I lokalplanlagte boligområder afhænger muligheden for at etablere erhverv af lokalplanens anvendelsesbestemmelser. Selv om anvendelsesbestemmelsen udelukkende giver mulighed for bolig er der en umiddelbar ret til at indrette erhverv i egen bolig, når følgende betingelser opfyldes:
I områder uden lokalplan er det som regel også altid muligt at indrette erhverv i boligen. Det kræver dog altid en vurdering i forhold til hvilken erhvervstype du ønsker at indrette. Erhverv der placeres i et boligområde, vil have begrænsede muligheder for vækst og udvikling. Du må være opmærksom på, at der kan opstå nabokonflikter i form af trafik til og fra virksomheden.
Indretning af erhverv i andre bygninger end boligen vil altid kræve en helhedsvurdering samt partshøring hos omkringboende.
Hvis din ejendom ligger i landzone, skal du undersøge om dit byggeri kræver en landzonetilladelse inden du kan få en byggetilladelse.
En ny bolig i landzone kræver altid en landzonetilladelse, hvorimod en tilbygning til din bolig som oftest kan undgå en landzonetilladelse. Vores Planafdeling skal dog altid have byggeriet til vurdering inden vi kan meddele byggetilladelse til en tilbygning.
Hvis du ønsker at opføre et udhus på maksimalt 50 m², som opføres i tilknytning til eksisterende bebyggelse på grunden, kræver dette heller ikke landzonetilladelse.
Det er altid en god idé at sende os en forespørgsel på mail byggesag@kolding.dk, såfremt du ønsker at opføre en bygning i landzone.
Hvis du ønsker at opføre noget nyt eller ændre noget eksisterende på din ejendom indenfor strandbeskyttelseslinjen, skal du altid søge hos Kystdirektoratet forud for ansøgning om byggetilladelse.
På Kystdirektoratets hjemmeside http://omkystdirektoratet.kyst.dk/boligejere-grundejere-og-lejere-inden-for-strandbeskyttelseslinjen.html kan du læse lidt mere om reglerne.
Det er altid en god idé at kontakte Kystdirektoratet, hvis du er i tvivl.
Jordvarme er en del af det man kalder vedvarende og miljørigtig energi, som Kolding kommune gerne ser anvendt. Du må dog ikke grave slanger ned i jorden eller installere et jordvarmeanlæg uden at søge om tilladelse hos Kolding Kommune.
Læs mere om jordvarmeanlæg på www.bolius.dk
Skal du bygge carport, skur eller drivhus? Vær opmærksom på nye regler
Et revideret bygningsreglement betyder, at du ikke længere skal søge om byggetilladelse til småhusbyggeri under 50 m². Det betyder i praksis, at det der før hed anmeldelsessager helt er væk.
Der er dog en meget vigtig undtagelse: Du skal altid søge byggetilladelse – uanset størrelsen på byggeriet – hvis småhusene på grunden samlet set overstiger 50 m².
Du skal dog altid indberette sit småhus-byggeri til BBR.
Tjek lokalplan og afstands-regler
Uanset om du skal søge byggetilladelse eller ej, skal du altid tjekke om byggeriet kan leve op til kravene i lokalplanen og ikke bliver bygget for tæt på skel.
Det samme gælder reglerne for, hvor langt, hvor stort eller hvor højt byggeriet må være i skel. Dette gælder altså også fx legehuse og drivhuse. Desuden skal man også være opmærksom på, at der kan være nogle byggetekniske regler, som byggeriet skal leve op til.
Skal du i gang med et småhusbyggeri og er i tvivl om reglerne, er du altid velkommen til at kontakte Byggesagsafdelingen. Du kan bestille tid til en samtale på kolding.dk/byggeri
To eksempler:
Ikke nødvendigt at søge om byggetilladelse
Du har ingen småhuse på din grund i forvejen, men nu vil du gerne bygge en carport på 30 m² og et drivhus på 15 m². Altså i alt 45 m². I dette tilfælde skal du ikke søge om byggetilladelse.
Nødvendigt at søge om byggetilladelse
Du har i forvejen en carport på 30 m² og et skur på 15 m². I alt 45 m². Nu vil du gerne bygge et drivhus på 9 m² og dermed kommer dine småhuse på grunden samlet set over 50 m². I dette tilfælde skal du altså søge om byggetilladelse.
Sådan indberetter du til BBR
I alle tilfælde - uanset om du har bygget med byggetilladelse eller ikke – skal du indberette dit småhus-byggeri, når det er færdigt, til BBR. Det gør du ved at sende en mail til BBR@kolding.dk, hvor du samtidig oplyser, hvor på grunden bygningen er placeret.

Det er ikke nødvendigt at få professionel hjælp til tegninger, vi kan sagtens behandle din byggesag efter dine egne tegninger
Få inspiration til hvad tegningen til en byggeansøgning kan indeholde af oplysninger.